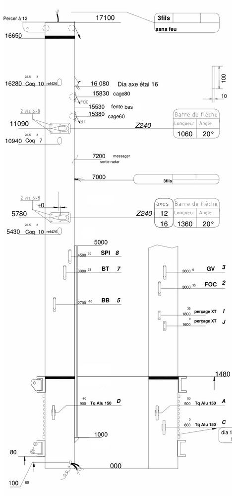
Mat Oceanis 46
Voir toutes les photos
Ref. annonce #14511
1500 €
- Paiement sécurisé
Dimensions
Longueur
17,1 m
17,1 m
Bateau
Modèle
OCÉANIS 46
OCÉANIS 46
Détails
Fabricant
Z SPARS
Z SPARS
Description du vendeur
À vendre mat d’un Oceanis 46
Avec emplanture.
Suite à changement pour un mat enrouleur
Avec barre de flèche, sans gréement dormant ni enrouleur .